產品分類 / Product Center
當前位置: 網站首頁 - 供貨范圍
供貨范圍碟簧油缸

碟簧油缸應用于數控臥車,數控立車,軋輥磨,鏜銑床,數控專機,紡織機械,自動化裝備等設備,完成移動部位的夾緊與放松,安全可靠。
碟簧油缸工作原理:
碟簧機械鎖緊,反向液壓放松,因此避免了泄露帶來的鎖緊力降低風險,安全可靠,零部件采用進口品牌。
體積小,夾緊力大,結構非常緊湊。
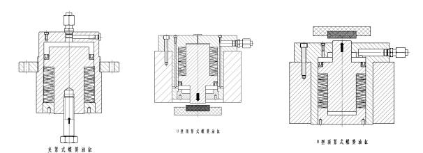
應用示意圖:如下

核心零部件:
核心部件均采用歐洲進口品牌,正常使用壽命約50萬次開合以上,10年以上使用壽命。
產品優勢:
碟簧油缸的夾緊力通過碟簧的脹緊力實現,屬于機械鎖緊,松開時僅需要接通液壓即可放松,因此方便控制,安全可靠,避免了液壓卡緊泄漏導致的風險。
碟簧油缸分為:碟簧夾緊油缸,碟簧頂緊油缸-O型,碟簧頂緊油缸-U型,低壓碟簧油缸,大行程碟簧油缸,非標碟簧油缸等,
德國質量標準:碟簧油缸核心部件均采用原裝進口件,安全可靠,性價比高。
成功服務市場15年以上,應用特別廣泛,國內大型機床及重型機床用戶均有使用,現貨供應。

不僅可以提供標準油缸,還可以提供非標油缸訂制,提供技術咨詢等。
詳情咨詢:
135 1102 3334(微信)/ 185 1054 2728 / 13511023334@163.com / QQ: 727646736.






